高級賃貸マンション「ロイヤルパークス仙台青葉通」・ 学生寮「Miraiフォレスタ仙台青葉通」竣工
■東北エリア最大戸数を誇る
2026年2月6日
大和ハウス工業株式会社
代表取締役社長 大友 浩嗣
大阪市北区梅田3-3-5
大和ハウス工業株式会社(本社:大阪市、社長:大友 浩嗣)は、宮城県仙台市青葉区において高級賃貸マンション「ロイヤルパークス仙台青葉通」と学生寮「Miraiフォレスタ仙台青葉通」の大型複合居住施設を建設してまいりましたが、2026年1月30日(金)に竣工しました。なお、「ロイヤルパークス仙台青葉通」は、2月7日(土)より入居を開始し、「Miraiフォレスタ仙台青葉通」は、3月20日(金)より入居を開始する予定です。
|
|
|
| 【「ロイヤルパークス仙台青葉通」外観】 | 【「Miraiフォレスタ仙台青葉通」カフェテリア】 |
当社では、2005年より三大都市圏を中心に都心型賃貸マンション「ロイヤルパークス」シリーズを22棟6,352戸(※1)供給。今回竣工した「ロイヤルパークス仙台青葉通」は東北エリアでは当社初となる「ロイヤルパークス」シリーズであるとともに、「ロイヤルパークス」と学生寮の複合施設も初となります。
本複合施設は、2018年に営業終了したビジネスホテル「アークホテル仙台青葉通り」の跡地に建設された、東北エリア最大戸数(※2)を誇る高級賃貸マンション(地上15階建て、266戸)、学生寮(地上14階建て、258室)、コンビニエンスストアからなる大型複合居住施設です。
アクセス面では、仙台市のメインストリート「青葉通り」に面していることに加え、仙台市地下鉄東西線「大町西公園駅」徒歩約3分、JR「仙台駅」からも徒歩約17分と利便性の高い立地です。
「ロイヤルパークス仙台青葉通」の外観は、「青葉通り」のケヤキ並木をモチーフにデザイン。共用部には、ゴルフシミュレーターを使用した「インドアゴルフレンジ」や「ペットテラス」「コワーキングスペース」「キッズスペース」などを設けました。また、「Miraiフォレスタ仙台青葉通」には、「カフェテリア」や「共用キッチン」「ラウンジ」「スタディールーム」を設け、快適な学生生活をサポートします。
※1.「ロイヤルパークス仙台青葉通」を含む。
※2.賃貸マンション、学生寮それぞれ最大戸数。当社調べ。
| ●ポイント 1.多彩なプランを用意するとともに充実した共用スペースを兼ね備えた賃貸マンション 2.快適な学生生活をサポートする学生寮 3.「青葉通り」のケヤキ並木や周辺環境と調和したデザイン |
1.多彩なプランを用意するとともに充実した共用スペースを兼ね備えた賃貸マンション
「ロイヤルパークス仙台青葉通」は、東北エリア最大戸数を誇る総戸数266戸の住戸を設けました。単身からDINKS、ファミリー層など、幅広いお客さまにご満足いただけるよう、1LDK(34.05㎡)~4LDK(84.99㎡)の全21タイプの多彩なプランを用意しました。また、多様なライフスタイルに対応できるよう、充実した共用スペースを設けました。
(1)インドアゴルフレンジ
ゴルフシミュレーターを使用した、インドアのゴルフ練習施設。天候に左右されずに、ゴルフ練習やレッスンを受けられるスペースです。(有料・予約制)
(2) ペットテラス
「青葉通り」に面したテラスで、散歩の際にペットと休憩できるテラスです。気候の良い時期は、ペットとともに読書や団らんを楽しむこともできます。なお、賃貸マンションの一部フロアはペット可としました。
(3) コワーキングスペース
落ち着いて作業ができるワークスペースをエントランス横に設置。窓に面した明るいカウンター席(5席)とオンラインミーティングなどにも対応可能な個室(3室、有料・予約制)を設けました。
(4) トランクルーム
自動車のタイヤや大型季節用品(クリスマスツリーやスキー・スノーボード用品)などを一時的に保管できるトランクルームを28室設けました。(有料)
(5) 顔認証システム
エントランスにDXYZ株式会社(ディクシーズ)の顔認証システム「FreeiD(フリード)」を導入。モニターに顔をかざすと、約0.2秒で入館できます。また、宅配ボックスに届いた荷物も「FreeiD」で受け取ることができます。(※3)
※3.顔の画像登録が必要。
|
|
|
|
| 【ゴルフレンジ】 | 【ペットテラス】 | 【コワーキングスペース】 |
2.快適な学生生活をサポートする学生寮
「Miraiフォレスタ仙台青葉通」は株式会社学生情報センターが運営する施設で、東北エリア最大戸数を誇る総室数258室の部屋を設けました。学生寮から徒歩約15分の場所に位置する、東北大学の学生が主に入居することを想定しています。賃貸マンションの主要な歩行者動線とは別動線のため、賃貸マンションの入居者と動線が交錯しにくい計画となっています。
寮内には、コミュニケーションが図りやすい「カフェテリア」や「共用キッチン」「ラウンジ」「スタディールーム」などの共用スペースを設けました。カフェテリアでは、申込者には朝食と夕食が提供されます。また、各戸には予めベッド(フレームのみ)や机が備え付けられているため、大規模な引っ越し作業をせず、入居できます。
|
|
|
|
| 【共用キッチン】 | 【ラウンジ】 | 【スタディールーム】 |
3.「青葉通り」のケヤキ並木や周辺環境と調和したデザイン
仙台市のメインストリート「青葉通り」は、宮城県および仙台市の木となっているケヤキの並木が続く通りです。「ロイヤルパークス仙台青葉通」の外壁は、2色に分け、弧を描くようにタイルを貼ることで、「青葉通り」の象徴であるケヤキのシルエットをモチーフにしたデザインとしました。「ロイヤルパークス仙台青葉通」南側からは、季節に合わせて色を変えるケヤキ並木を見ながら四季を感じることができます。また、上層階からは、南西から南方面にかけて八木山や青葉山を望むこともできます。
【エントランス】
あわせて、賃貸マンションのエントランスやペットテラス周辺にはケヤキやもみじ、外周部にはアオダモやシラカシを植えるなど、周辺環境と調和しながら、在来種・郷土種を中心とした植栽による親しみのある景観を創出しています。
さらに、本複合施設は、建築物省エネルギー性能表示制度「BELS」(※4)(4つ星)による「ZEH-M Oriented」(※5)と、「CASBEE」(※6)Aランクを取得しています。
※4.建築物省エネルギー性能表示制度のことで、新築・既築の建築物において、省エネ性能を第三者認証機関が客観的に評価し認定する制度のこと。
※5.建物全体の断熱性能を向上させることに加え、高効率設備を導入することで、住棟全体で年間の一次エネルギー消費量を20%以上削減することを目指した建物。
※6.建築物の環境性能の評価・格付け制度。
■建物概要
| 名 称 |
「ロイヤルパークス仙台青葉通」 |
「Miraiフォレスタ仙台青葉通」 ※.デザインコンセプトのキーワード「ミライ」と仙台を象徴する「杜の都」の「フォレスタ」を組み合わせました。 |
| 所 在 地 |
宮城県仙台市青葉区大町2丁目2-9 |
宮城県仙台市青葉区大町2丁目2-21 |
| 交 通 |
仙台市地下鉄東西線「大町西公園駅」徒歩約3分 |
|
| 敷地面積 |
4,388.40㎡(1,327.49坪) ※立体駐車場、コンビニエンスストアなど含む |
|
| 総建築面積 |
2,362.11㎡(714.54坪) ※立体駐車場、コンビニエンスストアなど含む |
|
| 総延床面積 |
25,294.64㎡(7,651.63坪) ※立体駐車場、コンビニエンスストアなど含む |
|
| 用途 |
賃貸マンション |
学生寮 |
| 建築面積 |
1,477.75㎡(447.01坪) |
695.30㎡(210.96坪) |
| 延床面積 |
16,519.38㎡(4,997.11坪) |
7,285.03㎡(2,207.58坪) |
| 構 造 |
RC造 地上15階建て |
RC造 地上14階建て |
| 専 有 面 積 |
1LDK(36.32㎡)~4LDK(84.99㎡) |
17.66㎡~19.14㎡ |
| 家賃 |
124,000円~256,000円(共益費込み) |
68,500円~77,500円(共益費込み) |
| 駐車台数 |
平置 10台(荷捌き2台含む) 機械式76台 |
― |
| 駐輪台数 |
自転車416台 |
自転車275台 原付15台 |
| 総数 |
266戸 |
258室 |
| 管理会社 |
大和リビング株式会社 |
株式会社学生情報センター |
| 建物管理 |
大和ライフネクスト株式会社 |
|
| 事業者 |
大和ハウス工業株式会社 |
|
| 設計・施工 |
西松建設株式会社 |
|
| 着工日 |
2023年8月25日 |
|
| 竣工日 |
2026年1月30日 |
|
| 入居開始 |
2026年2月7日 |
2026年3月20日(予定) |
| お客さま お問い合わせ先 |
大和リビング株式会社 アセット事業部 TEL:03-5908-0877 |
株式会社学生情報センター 広報室 伊井 TEL:050-3626-6749 |
|
|
|
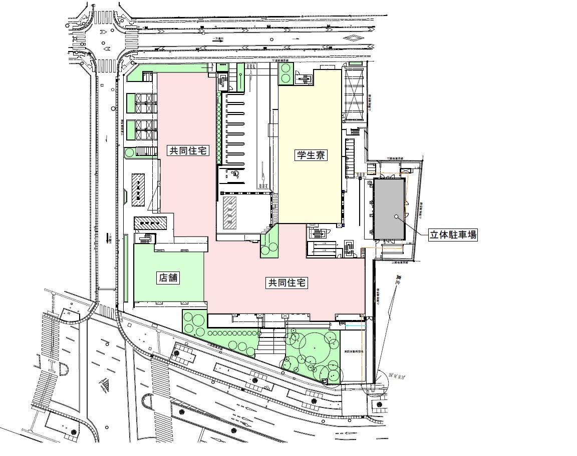
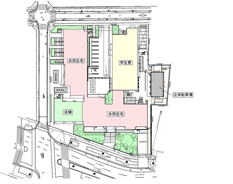
| 【配置図】 | 【鳥瞰図】 |

以 上
本プレスリリースは発表元が入力した原稿をそのまま掲載しております。また、プレスリリースへのお問い合わせは発表元に直接お願いいたします。
このプレスリリースには、報道機関向けの情報があります。
プレス会員登録を行うと、広報担当者の連絡先や、イベント・記者会見の情報など、報道機関だけに公開する情報が閲覧できるようになります。
このプレスリリースを配信した企業・団体
- 名称 大和ハウス工業株式会社
- 所在地 大阪府
- 業種 建設業
- URL https://www.daiwahouse.co.jp/
過去に配信したプレスリリース
木造賃貸住宅商品「MOKURIE(モクリエ)」全国展開開始
5/7 14:47
「淀屋橋ゲートタワー」7月9日(木)グランドオープン
4/30 15:00
三木市多世代交流施設「HITOTOKIMIKI」を運営開始
4/28 13:00
「COTOE(コトエ)橋本」を5月29日(金)に開業
4/24 11:48
音を気にせず「好きを楽しむ」専用空間『私の自由区』提案開始
4/23 13:00
宮城県利府町と大和ハウス工業が「災害発生時における支援協力に関する協定書」を締結
4/15 15:53
「DX注目企業2026」に初選定
4/13 18:45
当社都内最大の都市型物流施設「DPL東京東雲」竣工
4/7 11:55













